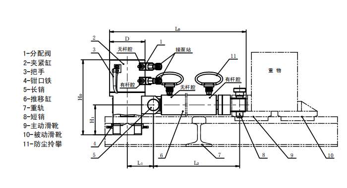
SCM系列在轨重物推移机
工作能力:16-30ton
推移行程:600mm/每次
较大工作压力:50.4-62.4MPa
推移重物质量(理想状态下):
SCM16-600 158ton
SCM30-600 400ton
特性:
● 包含夹紧钳和推移油缸两部分
● 广泛使用于各大件运输行业中
● 用户需自备重轨(38kg/m、43kg/m、50kg/m)和主被动滑靴
● 为使被移动重物能平稳运行,必须同时使用两套推移机
● 推移作业时在滑靴和钢轨的接触面涂润滑脂,达到降低摩擦系数作用。但要避免润滑脂沾在钳口铁和重轨接触面上,防止摩擦系数降低,削弱夹紧力
订购参考:
型号:SCM16-600 16吨推移机
夹紧钳:SCM16-600-1 2只
推移油缸:SCM16-600-2 2只
电动液压泵:PE10 2台
高压油管:SZAX-3-M22X1.5 4根
SZAX-6-NPT3/8 4根
主动滑靴、被动滑靴用户自备

| 型号 | 外 形 尺 寸 | |||||
| L0 | L1 | L2 | H0 | H1 | D | |
| (mm) | ||||||
| SCM16-600 | 1143 | 132.5 | 887 | 382 | 152 | 180 |
| SCM30-600 | 1193 | 157.5 | 905 | 417 | 152 | 250 |
| 型号 | 夹 紧 钳 | 推 移 油 缸 | ||||||||||
| 工作压力 | 额定夹紧力 | 夹紧行程 | 储油量 | 需油量 | 自重 | 工作压力 | 额定推力 | 推移行程 | 储油量 | 需油量 | 自重 | |
| MPa | KN | mm | L | L | Kg | MPa | KN | mm | L | L | Kg | |
| SCM16-600 | 50.4 | 775 | 35 | 0.27 | 0.54 | 67 | 50.4 | 157 | 600 | 0.92 | 1.87 | 50 |
| SCM30-600 | 62.4 | 1960 | 35 | 0.52 | 1.1 | 137 | 58.5 | 294 | 600 | 1.34 | 3.02 | 69 |
挑选液压扳手的过程中最看重的是什么呢
液压扳手是一种迅速,精确又节省成本的拧螺丝专用工具,早已替代了传统式的生产方法。如今获得了愈来愈多顾客的亲睐,液压扳手价钱从几万元到几十万不一,这么大一项开支务必要通过慎重考虑,调查再比照以后才可以定出来。
自然,液压扳手知名品牌有很多,相对应的知名品牌还有许多的顾客人群,可是微型液压扳手设备究竟怎么样用还得看顾客的具体应用状况。绝大多数顾客用的好得话那表明这一液压扳手知名品牌或是非常认同的。机械设备的液压扳手功效在风力发电地脚螺栓的拧紧,风力发电上放的扳子应用抗压强度是特别大的,可是使用如今早已3年多時间了,沒有发生过检修状况;而且工作人员会创建客户资料,准时提示顾客立即维护空心分体式液压扳手保养或是服务上门,顾客用的很安心。